157 Little Eveleigh Street, Redfern

Sold 16 August 2021
$1,715,500 Sold!

Leafy end terrace in the heart of Redfern

PRIVATE INSPECTIONS AVAILABLE

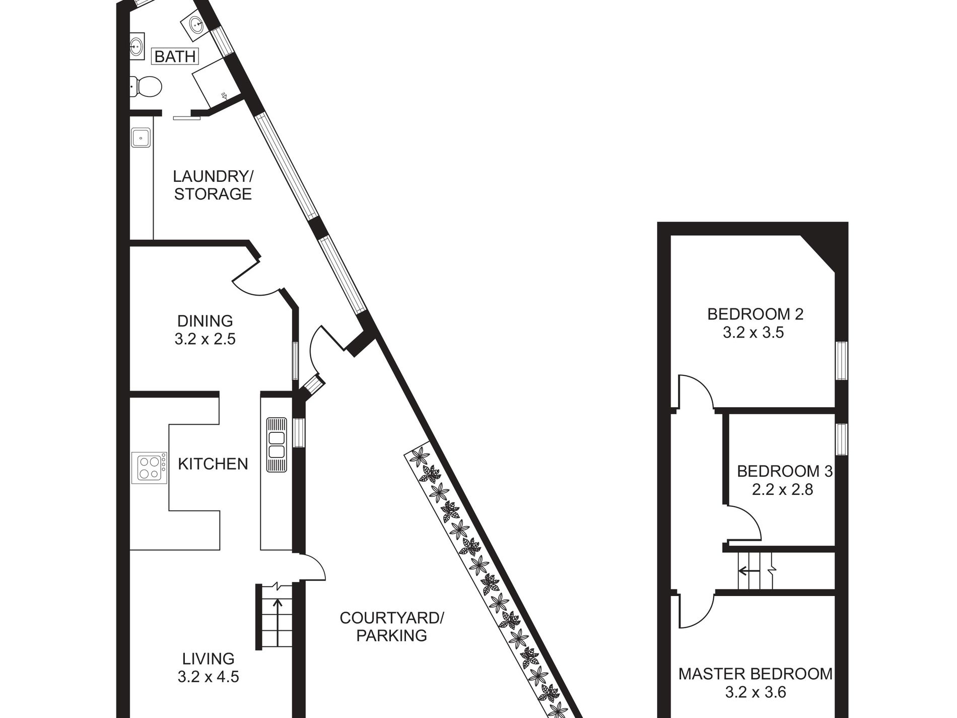
Formerly approved for a three level residence with rooftop terrace, this comfortable home sits on a rare extra wide block and has massive scope to develop your perfect inner city family home. Features include:

- Charming living room with floorboards and AC,
- Renovated kitchen with hardwood benchtops,
- Induction cooktop, dishwasher, high ceilings,
- Separate dining room or home office space,
- Three good sized bedrooms with leafy outlook,
- Refurbished bathroom with underfloor heating,
- Extra large courtyard/parking and storage area,
- Quiet tree lined street near Redfern Station,
- Easy walking distance to USYD and Victoria Park,
- 9.6m approx frontage, lapsed DA plans available.

Contact Matthew Bognar for further details
on 0411 444 898 or by online enquiry

Bedrooms: 3
Bathrooms: 1
Garages: 1

property information

main information
  • Property ID: 792398
  • Bedrooms: 3
  • Price: $1,715,500
  • Bathrooms: 1
  • Garage: 1
Additional Features
  • Air Conditioning
  • Courtyard
  • Fully Fenced
  • Outdoor Entertainment Area
  • Secure Parking
  • Dishwasher
  • Floorboards
  • Solar Panels

Do you like this offer? Contact me to get more
information!

contact me

I am here to help with all your real estate needs and questions. Let me know what's on your mind and start a conversation.

mobile
Social

What is ?